민선7기 아산시의 시작과 함께 대형 민간 도시개발사업이 활기를 띄며 인구 50만 명인 더 큰 아산으로의 출발이 순조롭게 진행되고 있다.

금년도 8월부터 현재까지 아산신도시 해제지역인 탕정면에 2개 지구, 배방읍 북수리 지역에 2개 지구, 기존 도심권인 용화동에 1개 지구 등 총 5개 지구, 1,997,096㎡에 5,153억 원의 투자되고 인구 3만8011명 규모의 민간 도시개발사업을 유치해 추진 중이다.
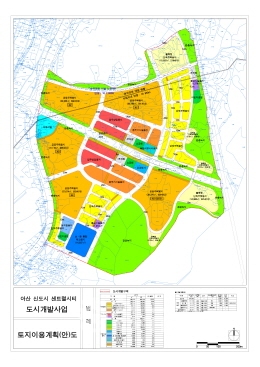
우선, 아산 신도시해제 지역인 탕정면 동산리에 667,039㎡에 1,500억 원을 투자, 인구11,504명의 아산신도시 센트럴시티 지구 추진으로 신도시 해제지역 내 거점 도시가 조성되어 주변지역도 민간의 투자가 활성화 될 것으로 전망되고 있다.
이와 함께, 아산신도시 해제지역인 탕정면 동산리와 천안시 불당동 시계까지 도시계획도로(B=35m L=925m) 신설에 250억 원의 예산이 필요했으나, 도시계획도로를 중심으로 민간 도시개발 사업을 유치·추진되어 아산시는 250억 원의 예산도 절감하게 되었다.
탕정면 매곡리 신도시해제 지역인 선문대학교 남쪽에도 536,283㎡에 1,056억 원에 10,295명 규모의 탕정지구 민간 도시개발사업이 추진되어 탕정역 개통과 아산신도시 2단계 개발로 난개발이 예상되는 지역에 계획적이고 체계적인 도시조성이 가능해졌다.

기반기설과 편익시설이 부족한 배방면 북수리 지역에 621,064㎡ 1,712억 원을 투자 10,994명 규모의 이내지구 도시개발사업이 추진되고, 49,943㎡에 450억 원을 투자 1,348명 규모의 창터지구 도시개발사업이 민간 제안되어 기반시설과 편익시설이 확보 및 동지역과 신도시 지역의 연결도시 기능이 강화될 것으로 보여진다.
아울러, 모종동과 신용화동으로 상권이 넘어가 낙후를 면지 못하고 있는 용화동 지역에 용화체육공원 조성사업과 연접해 122,767㎡에 435억 원을 투자 1759명 규모의 용화2지구 도시개발사업이 민간 제안됐다.
이와 함께 인근에서 시행되고 있는 남산2지구 1708명, 신인지구 1866명 규모의 도시개발사업이 시행되고 있어 구용화동의 지역경제활성화가 기대되고 있다,
특히, 아산시 동 지역 중 선호도가 가장 높은 모종동 지역에 2017년부터 2개 지구가 추진되고 있고, 현재 2개 지구를 민간에서 검토, 아산시와 협의 중에 있다.
2022년 개통되는 아산-천안간 고속도로 아산IC가 인근 배방읍 구령리에 설치되고, 여기에 시는 아산IC와 아산시외버스터미널간 4차선 도로 연결을 계획하며 풍기역 신설에 긍정적 요소로 작용할 것으로 보고 있다.
아산시 관계자는 “인구 50만명의 더 큰 아산으로의 변화가 출발부터 순항하고 있다”며, “아산시가 앞으로 지속발전 할 수 있도록 도시인프라 구축 등을 통한 시민 삶의 질 향상을 위해 행정력을 집중할 예정이다”며, 아산시의 발전가능성에 대한 높은 기대와 자신감을 전했다.

